|  Москва

Отдел паркетных работ компании «Вернисаж» выполнил укладку художественного паркета под ключ в частных апартаментах в центре Москвы.
Мы получили заявку от дизайнера с пожеланиями по изготовлению модуля из массивного паркета с художественными элементами (цветочный рисунок). Для согласования с клиентом предварительно на производстве были выполнены модули из радиального и тангенциального паркета (разные виды распила древесины) и предоставлен клиенту и дизайнеру на утверждение. Клиент выбрал модуль из радиального распила, после чего дизайнер передал нам проект раскладки напольных покрытий на объекте.

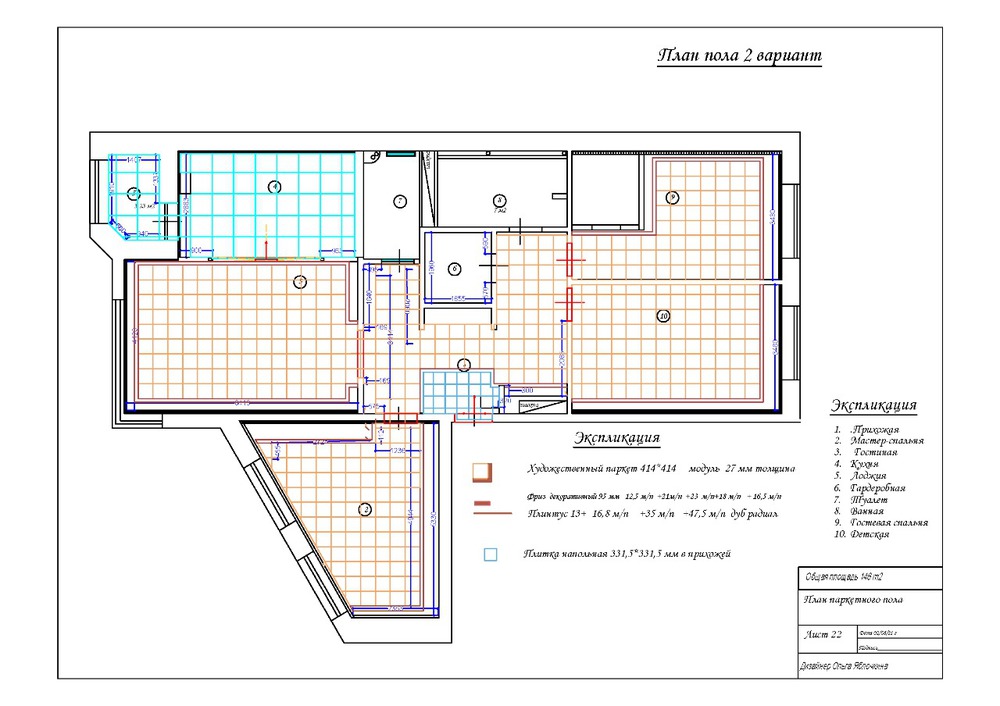
Отдел проектирования компании «Вернисаж» в лице Алексея Самсонова выполнил раскладку модулей в черно-белом варианте на проекте, согласовав отцентровку раскладки модулей в помещении.

На объект выехал наш технолог Иван Харченко для изучения основания: были сделаны все необходимые замеры (прочность, влажность, ровность). Перед началом работы решили подшлифовать основание, чтобы выровнять незначительные перепады, и сделать очистку основания, чтобы стелить фанеру непосредственно на очищенное основание для более надежного приклеивания. Далее наши мастера постелили фанеру на основание, отшлифовали ее и уложили предварительно изготовленный модульный художественный паркет. Все стыки с плиткой были сделаны с применением пробкового компенсатора. Затем выполнена комплексная шлифовка ленточными и дисковыми машинами, сделано очень аккуратно примыкание к плитке – все вровень без перепадов.

После шлифовки мастера выполнили грунтование паркета в 2 слоя поджигающей спиртовой грунтовкой Berger L81 и покрыли 5 слоями лака с промежуточным межслойным гелем.

Получился красивый результат, объект выполнен на высоком уровне, клиент остался очень доволен работой: паркет достойно и гармонично вписался в будущий интерьер помещения.


Услуга:
  • Проектирование модулей художественного паркета.
  • Проверка и подготовка основания: замеры, шлифовка и очистка.
  • Устройство чернового пола из фанеры.
  • Укладка модульного художественного паркета.
  • Шлифовка паркета ленточными и дисковыми машинами.
  • Грунтовка паркета в 2 слоя спиртовой грунтовкой Berger L81.
  • Покрытие паркета лаком в 5 слоев.

Площадь помещения: 100 м2