|  Москва

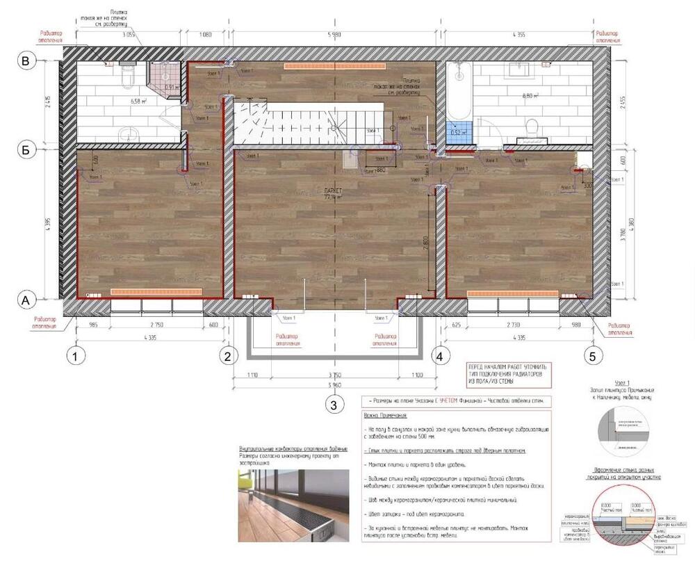
Мастера компании «Вернисаж» выполнили укладку инженерной доски Finex в частном доме в с. Абрамцево Московской области.

Услуги:

  • шлифовка цементного основания дисковой машиной с франкфуртами красного цвета
  • грунтовка основания двухкомпонентной эпоксидной грунтовкой Berger Primer E (1 этаж) 
  • грунтовка основания однокомпонентной полиуретановой грунтовкой Berger Primer P (2 этаж)
  • укладка инженерной доски на стяжку на однокомпонентный эластичный полиуретановый клей Berger Bond M1X
  • примыкания паркета к конвекторам, плитке, окнам 44 пог.м

Площадь помещений: 134,82 кв.м