| Москва
Мастера компании «Вернисаж» выполнили укладку штучного паркета рисунком английская елка на объекте в Москве.
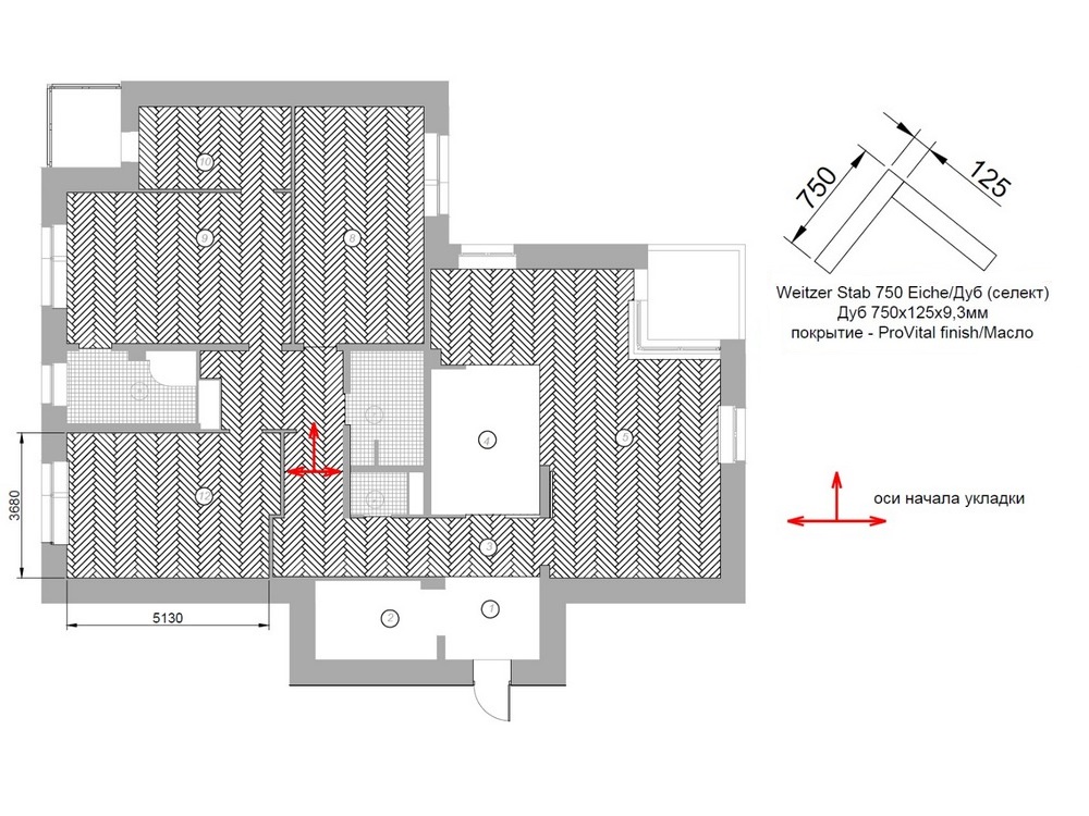
Услуга: укладка паркета Weitzer Stab 750 Eiche/Дуб (селект) 750x125x9,3 мм с покрытием ProVital finish/Масло
Мастера компании «Вернисаж» выполнили укладку штучного паркета рисунком английская елка на объекте в Москве.
Услуга: укладка паркета Weitzer Stab 750 Eiche/Дуб (селект) 750x125x9,3 мм с покрытием ProVital finish/Масло
Осмотр бесплатный при заключении договора подряда.