Компания «Вернисаж» очень любит и ценит художественный и геометрический паркет. Мы производим такой пакет абсолютно любого уровня сложности в собственной мастерской, и сегодня мы хотим показать вам, как происходит это таинство.
Добро пожаловать на один из объектов компании «Вернисаж» в Москве, где была выполнена укладка паркета под ключ. Этот объект – один из тех, который мы считаем нашей гордостью, потому что художественный пакет был сделан от и до специалистами нашей компании.
- На объекте мы начали работы с подготовки основания: принимали основание, проверяли его на прочность, после этого мы делали шлифовку и выравнивание основания.
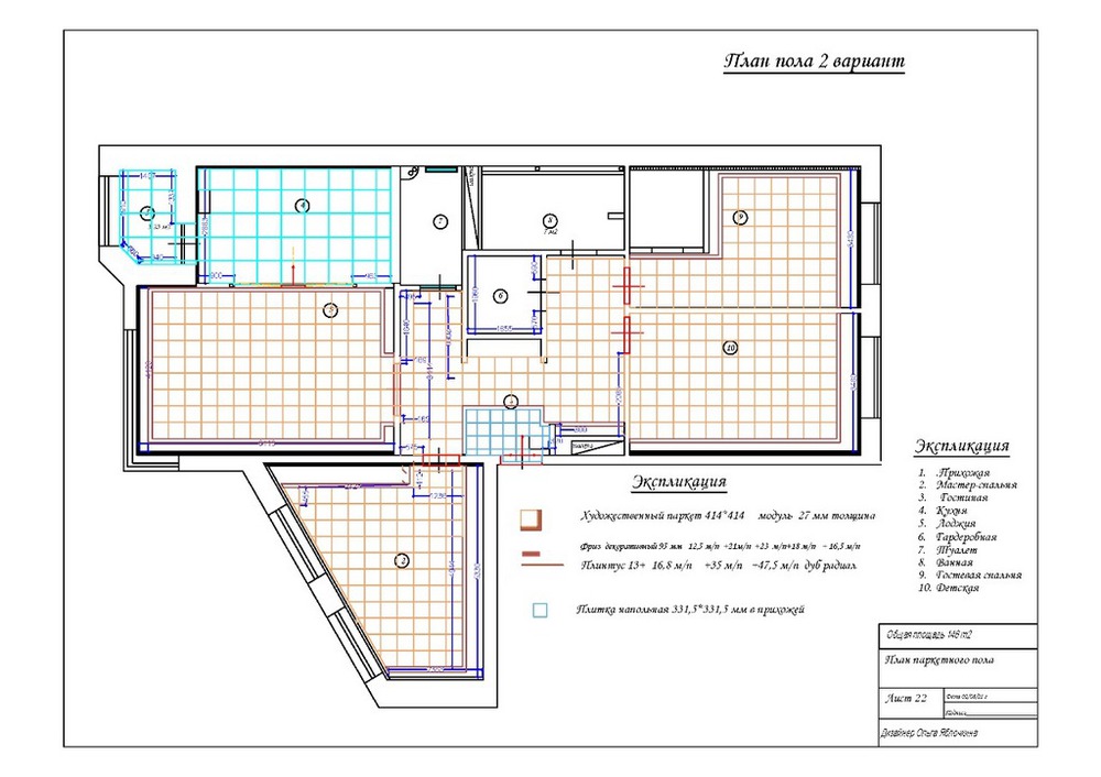
- Далее мы занимались проектированием художественного рисунка: дизайнеры сделали раскладку в Автокаде, утвердили с архитектором и клиентом итоговый вариант раскладки этого паркета во всех помещениях.
- Непосредственно изготовление модулей этого художественного паркета происходило в нашей собственной мастерской: поистине ювелирная работа наших мастеров.
- Далее мы выполнили профессиональную укладку паркета и шлифовку.
- А последний и самый ответственный этап паркетных работ – установка плинтуса.
Обратите внимание на видео, как грамотно сделаны внешние и внутренние углы, подходы к порталам, состыковки внешних углов, особенно тех, которые не образуют 90 градусов – все выполнено очень аккуратно благодаря опытным руками и профессиональному инструменту.
Но самое главное: чтобы ваш паркет сохранился в первоначальном виде, необходимо поддерживать постоянный климат в помещении, особенно важность воздуха. Когда начинается отопительный сезон, влажность резко падает и в обычных условиях не поднимается выше 35% – это очень мало для содержания деревянных полов в хорошем состоянии. В этих условиях необходимо поставить увлажнитель воздуха.
Доверяйте профессионалам и наслаждайтесь натуральными деревянными полами!







Иван Харченко
Иван Харченко